domingo, 19 de septiembre de 2010

Las nuevas fachadas, más allá del Wow effect

Las fachadas de los edificios son las responsables de causar la primera impresión, pero como en todo, no es suficiente con una buena primera impresión. Hoy en día hace falta sustentar el diseño con otros valores. La lucha actual está en la evolución de los cerramientos ligeros y su saber compaginar armoniosamente el “ser” y el “aparentar” del edificio.
El Wow effect consiste en crear un impacto emocional en el espectador. Una sensación que todo arquitecto ha ido en su búsqueda a través del diseño de las fachadas y que durante el último siglo ha funcionado con fórmulas como los cerramientos ligeros o muros cortina. Ha sido
el sistema constructivo que ha dado forma como ningún otro a la arquitectura inmaterial soñada por el Movimiento Moderno.

sábado, 18 de septiembre de 2010

177 VIVIENDAS EN VITORIA-GASTEIZ


Promotor - Developer: Lagunketa, S.A
Constructor - Construction Company: Langunketa, S.A
Direccion - Adress: parcela RC-PA5, Sector 9, Salburua, Vitoria.
Fecha - Date 2005-2007

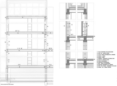
Esta instalacion es un revestimiento de fachada ventilada mediante tablero laminado de alta densidad de Abet laminati de 8 mm de espesor referencia MEG 870 que es el color que aparece en la foto. La fijacion es mecanica y vista mediante remaches de Aluminio/Inox de 25 mm y ala ancha. La fachada va fijada sobre perfiles de aluminio en dos versiones L de 50*50*2 mm y T de 110*50*2 mm fijados a escuadras de 100 * 50 mm de aluminio y atornilladas a la estructura original mediante tacos de nyllon bicromatados HRD UGS de 80 mm. la impermeabilizacion interior es mediante poliuretano proyectado. La obra consta de 5000 m2 de revestimiento similar en 4 colores y en las partes bajas fachada ventilada mediante azulejo faveton.la carpinteria metalica es de alumino y lleva recercos de chapa de 150 mm y las contraventanas son sobre soportes de hierro galvanizado y con tablero de 6 mm. las esquinas se resolvieron a testa.

discusión sobre fachada y web de matos-castillo

"como un guante"_concurso VIVA_Amann/Cánovas/Maruri



Concurso VIVA. Vivienda protegida de vanguardia. Mieres. Asturias.
1º PREMIO.2006

Visita la web de Amann/Cánovas/Maruri

martes, 14 de septiembre de 2010

goujon-cret

El sistema CRET es una solución revolucionaria para el anclaje de losas y forjados a muros ya construidos, que permite cargas más elevadas que las soluciones tradicionales y mayor comodidad y rapidez en su instalación.
Instalación
1. Replanteo, saneado de la pantalla y limpieza
2. Ejecución del taladro en la pantalla de dimensiones según tabla
3. Limpieza del taladro y relleno de resina no retráctil BCR 400 Vinil
4. Introducción de vaina correspondiente o Cret en el taladro, quedando el eje en posicion horizontal
5. Colocación de las armaduras de suspensión según detalle de cada solución
6. Vertido y vibrado del hormigón



sección en eding aps

construccion=ensamblaje

Construcción industrializada, cadena de montaje más que edificio prefabricado
CONSTRUCCIÓN=ENSAMBLAJE
A. Estructura
B. Cerramientos
C. Elemento ventana

todo aquí

A2.Estructura prefabricada hormigón + forjados de hormigón



132 INFRAESTRUCTURAS UNIVERSITARIAS EN LA UNIVERSIDAD AUTÓNOMA DE MADRID

NOMBRE DEL AUTOR: EUGENIA CONCHA GIMÉNEZ-CORAL.

SITUACIÓN DEL PROYECTO: CAMPUS DE LA UAM DE CANTOBLANCO, MADRID, ESPAÑA.
ESCUELA Y FECHA DE REALIZACIÓN: E.T.S.A.M. OCTUBRE DE 2008.
TUTORES DEL PROYECTO: ANGEL BORREGO, JACOBO GARCÍA-GERMÁN, JUAN HERREROS (AULA PFC).
Memoria:
El proyecto consiste en utilizar un programa de servicios y residencia de estudiantes para resolver la identidad del punto de acceso de la Universidad Autónoma de Madrid.
Este conjunto tiene su punto más débil en la escasa identidad del que quizá es el momento más significativo de su uso cotidiano: el apeadero del cercanías por el que acceden 25000 alumnos cada día.
Alli, sustituyendo la actual estación, totalmente obsoleta, mi propuesta acumula una cantidad de usos suficiente hasta encontrar la escala que este acontecimiento demanda.
Elegir la cantidad de arquitectura y su presencia para ser hito en un recinto de grandes edificios.
El equipamiento gestiona y se aprovecha de algo que ya existe: el flujo de los estudiantes, la actividad en un sitio de congestión.
Los tres medios de transporte principales configuran la solución formal del proyecto que se adapta a las situaciones cambiantes de circulaciones, gestionando la masiva afluencia de 500 personas cada 3 minutos en hora punta.
Existe un gran vestíbulo público de ritmos frenéticos, un espacio vivo, con circulaciones cruzadas de peatones y máquinas (tren cercanias y microbuses de recorrido interno por el campus) desde el que se puede acceder a los programas que sirven a los estudiantes.
Hay una autonomía de los espacios en medio de todos los flujos. el espacio intersticial es híbrido, y a pesar de la fusión de programas que existen en el proyecto cada espacio es diferente y autónomo, unificado por la continuidad del espacio público.
El espacio público se extiende en horizontal hasta construir una gran plaza en dos niveles y crece en altura hasta convertirse en una señal de identidad de toda la universidad.
Sobre todo este organismo multiescalar se alzan de forma imponente tres torres residenciales que responden a una demanda creciente de vivienda en el propio campus.

lunes, 13 de septiembre de 2010

casa escalera

enga!

grafismo y narración

Algunas muestras de paneles de la III Muestra PFC de la Bienal Española del 2009

bucea